6 Beautiful Home Designs Under 30 Square Meters [With Floor Plans]

Hanna
Published on: January 7, 2016

Small space

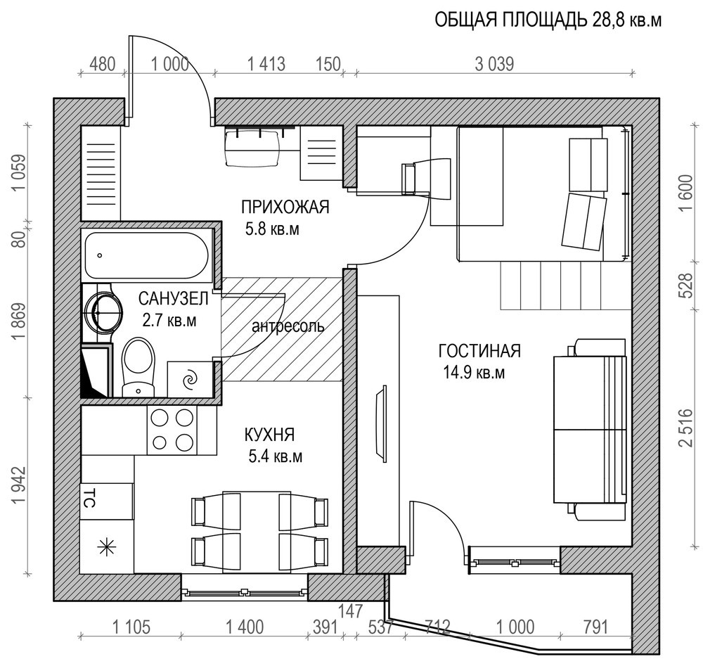
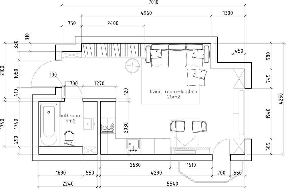
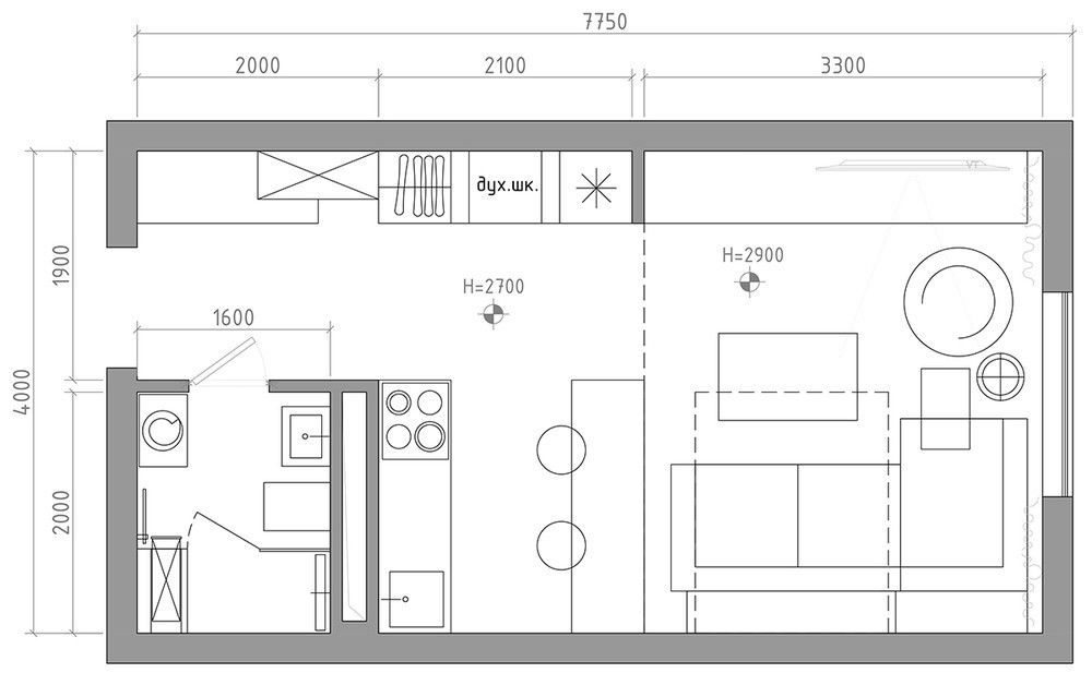
Interior designers are well familiar with the paradox where space constraints actually enhance creativity by requiring an approach that breaks a problem down to its most basic parts. These 6 apartments make 30 square meters look comfortable rather than limited - every piece of furniture makes a big visual impact but leaves plenty of legroom, and each accessory serves a purpose rather than simply filling a void. Browse through these inspiring small apartments and their super-compact floor plans for a nice variety of organization techniques to try at home.

Share this story

Subscribe to our newsletter

Join a growing community of over 20,000 design enthusiasts and get exclusive insights, insider content, and hand-picked articles delivered to your inbox weekly.

Top Hits