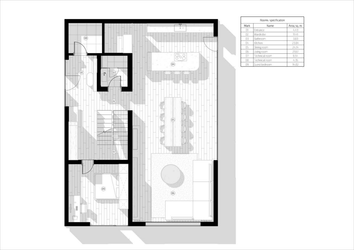
Minimalism is not just a home interior aesthetic, it is a lifestyle that brings peace of mind to all who embrace its simple serenity. By paring down items and removing the visual noise, life and living spaces become less hectic, less attention-grabbing, and less energy-draining. In the two minimalist home interiors that are featured here, we observe how minimalism doesn’t have to mean a cold, stark, blank white home. These two soft minimalist home designs are welcoming, family-oriented places with warm beige decor and friendly rounded edges. Each design is set inside a two-story abode and includes open-plan living inspiration filled with light, individual style, and simple luxury.

Located in Ljubljana, Slovenia, this 220-square-meter minimalist interior was designed for a young family and their little daughter. A long beige sofa gives the new family plenty of room to spread out and grow. A large area rug creates a soft landing spot for cold feet and tumbling children.

An elegant black floor lamp offers task lighting over the lounge seating arrangement. A huge edge-edge window brings in abundant natural light. Beige drapes softly frame the wide view.

A glass coffee table reflects the influx of natural light. An acrylic side table continues the translucent, light-reflective aesthetic.

The open-plan living space includes a formal dining area, where the family can gather to eat and chat about their day. A large wooden dining table and matching chairs accommodate up to eight people, which makes plenty of room for grandparents or aunts and uncles to come to dinner.

Two modern, white dining room pendant lights spread even illumination along the rectangular dining table. The lights descend through a double-height void, passing by a mezzanine landing.

The wooden dining set is complemented by a wood and beige kitchen installation. A large kitchen island separates the two areas.

Three kitchen bar stools line up along the edge of the kitchen island countertop to complete a breakfast bar arrangement. Chic gold, linear suspension lights draw above the full length of the island.

The living space has an open flow into the entryway. Wood flooring moves seamlessly from one space into the next.

A stylish home entryway is fashioned with a curvaceous ottoman, a floating wooden console unit, and a trendy arched mirror. A pair of modern wall sconces conveniently light the entryway shelf.

Further back in the home entryway, a built-in bench integrates with a wall of storage units. A shelving tower completes the storage run with a pleasing decorative element. Adornments are kept simple to adhere to the restful minimalist aesthetic.

A mirrored panel is applied to the side of the staircase design, which breaks its bulk and reflects natural light into the rear of the hallway.

Shoes are neatly tucked beneath the floating entryway bench to keep the floor clear and tidy. A tidy space means a tidy mind.

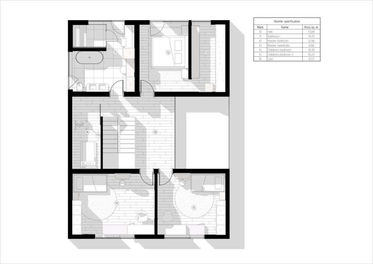
In the master bedroom, a beige upholstered bed is teamed with a stone headboard panel to build a luxe, bespoke look.

The full length mirror sews a familiar style thread with the arched mirror in the home entryway.

In the main bathroom, pale beige decor quiets the mind. A beige double sink bathroom vanity curves gently into a beige tiled backsplash.

Behind the freestanding bathtub, a shelf is recessed into a plumbing concealment wall to make space for toiletries.

On the opposite side of the luxurious bathroom, a built-in dressing table offers a comfortable place to put on makeup and style hair.

Slatted doors add texture around the vanity area. A freeform vanity mirror and a round pouf offset the linear dressing table design.

The modern kid's room is a large space, made to look even larger by a wide, frameless, arched mirror. A second arched silhouette frames a small vanity area for the child. A round mirror and a curved dressing table smoothly complement the arch-shaped theme.

On the opposite side of the kid’s room, a swivel chair pulls up to a unique desk and window seat combo.

Soft pink cushioning wraps around the kid’s bed. See more inspiration for kids' beds.

In the downstairs shower room, a chrome bathroom faucet arches in front of a full-length vanity mirror. A floating vanity unit slices across the custom-cut glass.

Color-coordinated shower fixtures camouflage into the minimalist shower space design.

Our second soft minimalist home interior is defined by an abundance of curves. A curved sofa features a cutaway back to open up a glorious green view.

A spiral staircase twists down into the open-plan living space, creating a striking feature. Beside it, a stunning kitchen island draws curves of its own.

Small floor lamps tuck underneath the stairs, where they give out a soothing glow.

A beige living room rug neatly pulls together the lounge furniture arrangement. A beige-paneled focal wall features an attractive curved edge, which wonderfully complements the sweeping staircase.

An oversized globe pendant light hovers above the round dining table and upholstered dining chairs like an enormous moon.










