Small apartments present several unique structural limitations – lack of storage, insufficient lighting, and cramped floor plans are just a few of the most common restrictions. The four apartments highlighted in this post turn those obstacles into sure strengths. They each carve out their own distinctive styles, no doubt influenced by the requirements imposed by their compact floor plans. From dressing up windows to coordinating color themes across a studio floor plan, these inspiring spaces offer a variety of techniques to try. If you're working with a home less than 30 square meters in size, this post is for you.

This final apartment squeezes in at 28.7 square meters and manages to feel warm and comfortable despite its minimalistic style by using layered fabrics and organic accents wherever possible. One of the most modernistic features has to be the series of triangle-shaped lights studding the ceiling – bold yet functional.

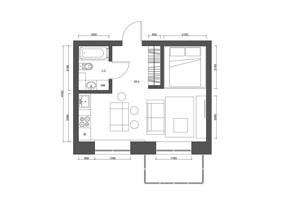
This apartment for a young man includes all the necessities within a compact space of only 17 square meters. Strategic accommodations include a sofa that folds out into a full bed, furniture that transforms to serve multiple purposes, and smart integrated storage to make the entire space feel more streamlined and cohesive. The interior feels homey and highlights the personality of its owner through an abundance of books, artwork, and decoration.

Without much natural light, the material theme goes from light white matte to glossy white paneling to preserve as much illumination as possible.

A partial wall provides the office with just enough privacy. Hidden spaces like these are always a great candidate for a fun accent wall – this one features New York City street names.

Hallway walls feature even more typography. This time, the theme expresses greetings in a variety of different languages.

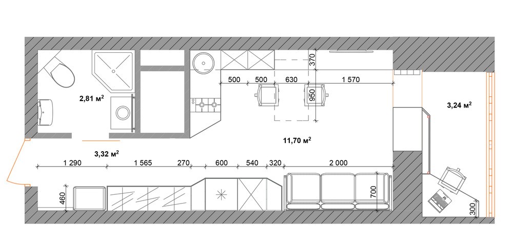
The kitchen feels especially open and spacious. The angled corners help preserve as much of the walking path as possible.

A series of racks holds silverware and a lovely collection of copper pans. Combined with the farm-style stools and distinctive floors, the aesthetic seems like a contemporary take on rustic kitchen design.

Here, you'll notice that the triangle lighting motif continues all across the ceiling and even continues between rooms.

Back in the living room, a little industrial urbanism takes the form of a pipe-and-board shelving system and entertainment center.

A curtained niche offers privacy in the bed area and hides convenient storage tucked neatly underneath.

Light pinkish mosaic tiles emphasize the warmth of the floor, giving the bathroom a delicate and relaxing effect.

Plus, it boasts an inspiring and compact layout. Pendant lights provide a decorative touch without taking too much space, balanced by decorative and useful containers below.

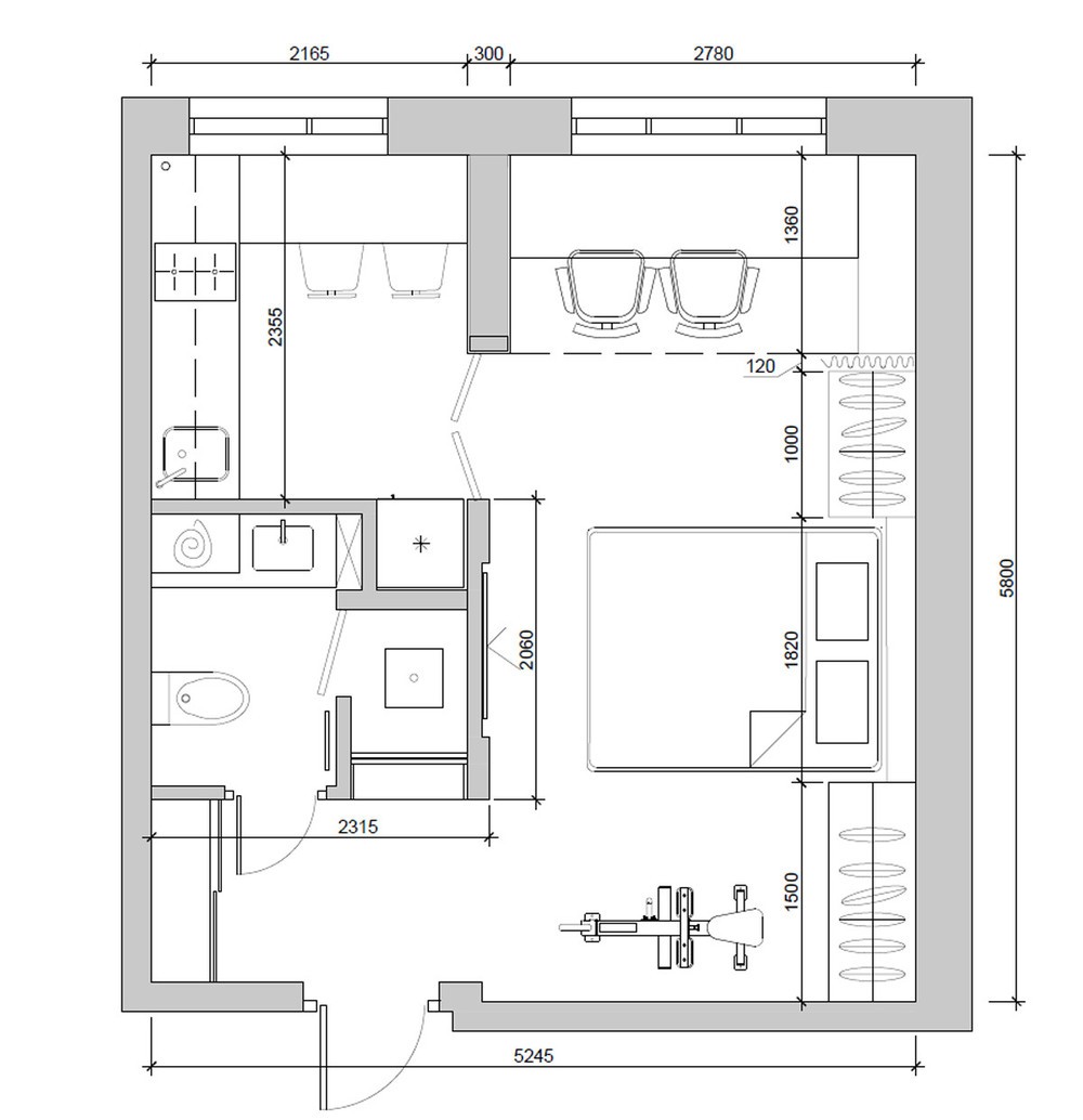
This studio apartment accommodates a young couple by consolidating a variety of activities within a single room. The main area serves as a bedroom, a gym, and an office – the bed even lifts up into the wall niche to provide more space for entertaining guests. The young residents can claim more space for entertaining by folding the bed upward into the wall niche.

In such a small space, every detail counts. Certain iconic furniture styles can make a statement much like a sculpture or a painting – the stunning red Egg Chair by Arne Jacobsen is one of those pieces.

The entryway keeps things light and organic, with playful tiles to spark curiosity and beckon guests inside.

Bam! Fire-engine red changes up the tone and instantly energizes the spirit. Scattered reflective tiles glitz things up a bit.

Subtle floral motifs give the shower a touch of elegant appeal in contrast to the incredibly strong lines that traverse the bathroom.

But perhaps most impressive of all, the layout itself is quite ingenious. A corner-cut shower, above-washer cabinetry, and tall towel rack/warmer suits all its essential purposes without feeling cramped.

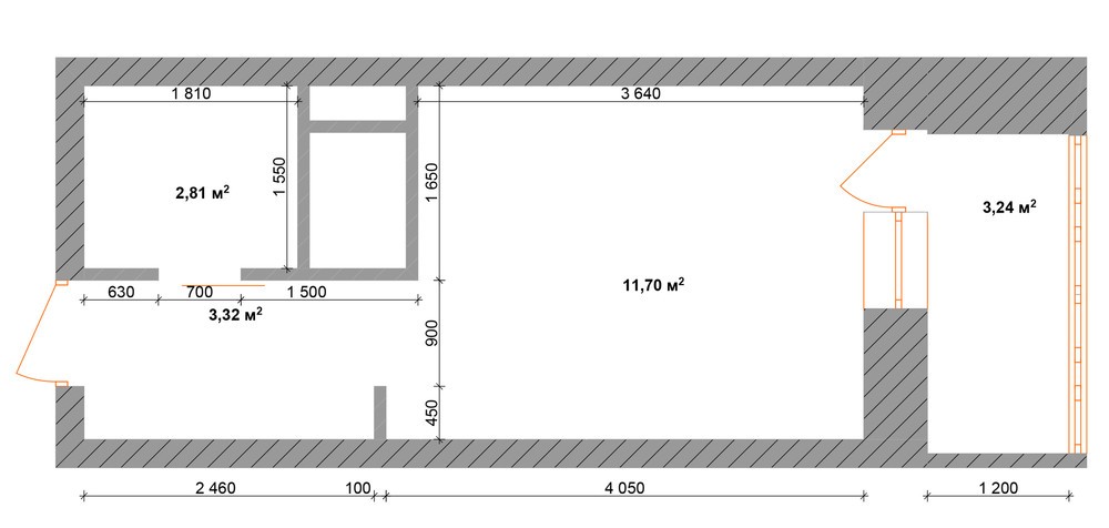
Clocking in right at the 30 square meter mark, this small apartment design smartly suits the needs of a woman with an active lifestyle and does so without sacrificing an ounce of personality or style. The interior theme is bright and energetic, flavored with strategic bursts of fire-engine red. It's serious but laid-back and offers plenty of playful details to admire.

A cozy wood-clad office features plenty of built-in storage, and enjoys the benefits of the large window. The residents can get a little privacy or darken the room by pulling the heavy blackout shades.

Blue accents brighten the grayscale living room theme. These little considerations are especially important due to the lack of natural light.

With its position facing a mirrored closet, the home gym lets the residents check out their weight lifting form for better safety and results.











